The parking garage from a concrete building complex in Neukölln acts as a stage for this atmospheric Twin-bar. The twins share only a roof terrace which is the only hint given to the outside about the hidden night- life. Inspired by „A Clockwork Orange“ this bar forms a backdrop for a human tragedy revealing itself at night.
As part of a proposition for reviving a rural community in central Germany, this multi-use pavilion presents itself as a new focal point for the old farm. In a strategic position and with a very specific realtionship to its surrounding the project offers a canvas for a complex development of the community.
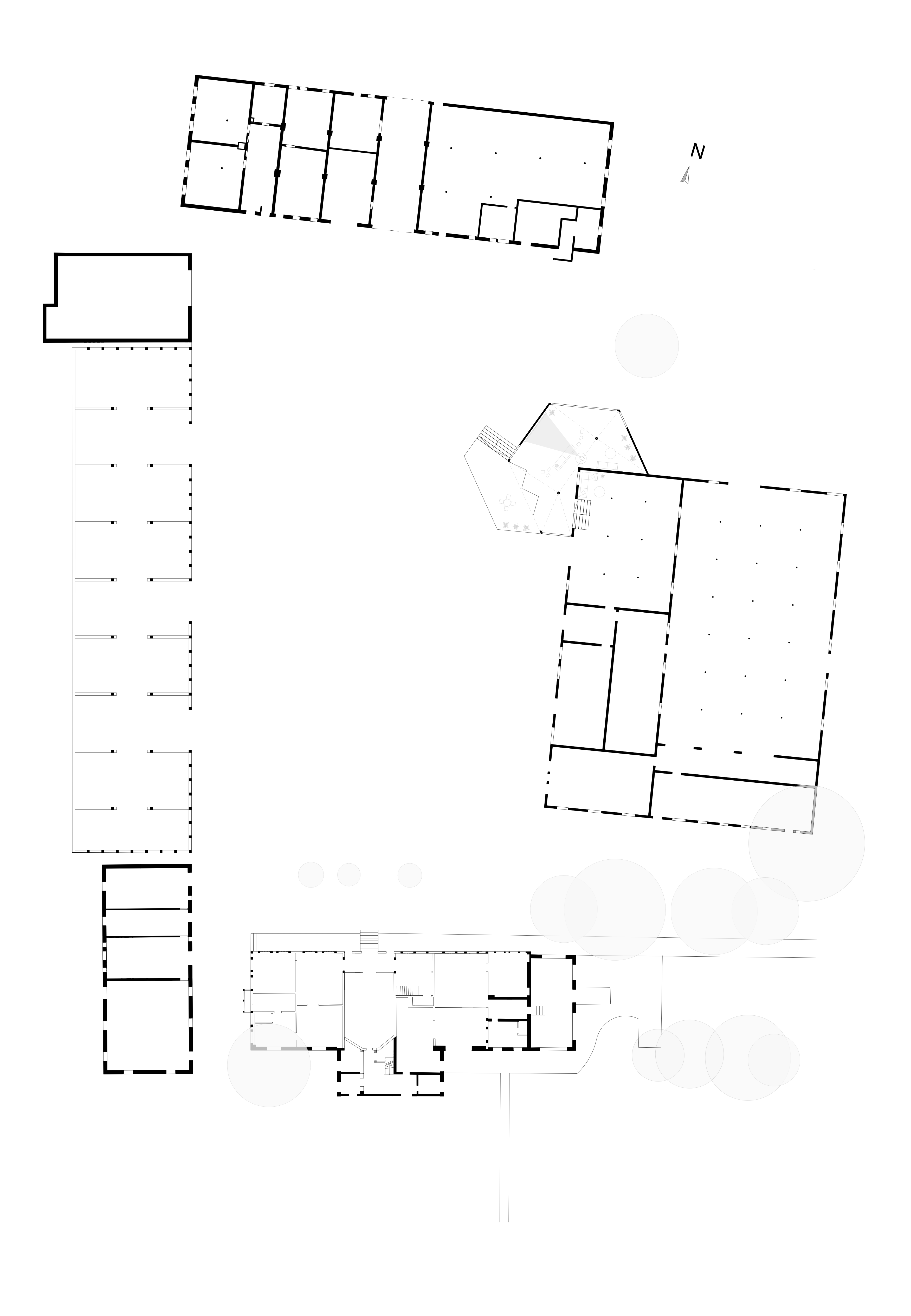
Reconciling Berlin-City and Agriculture: This is a thoughtful attempt of refurbishing a housing complex, densifying the city and also contributing to a meaningful food supply and revitalizing green space in the Hafenplatz (Kreuzberg). The design is maximizing green roof area and the connectivity between inhabitants. A direct contact to nature, a community-oriented program, decentralized food supply with a low carbon footprint and a close connection the ecosystems that surrounds us. Those are things the integration of urban agriculture offers. Looking at a holistic understanding of sustainability, this mixed-use co-owned housing project, offers an extensive green roof for urban farming and a flexible concrete-wood structure for an ever-changing city.

BosCoop e.V. is a Berlin-based association of young people organizing a community-supported agriculture project with a focus on fruit cultivation. Using the traditional German cultivation method of the meadow orchard, nearly a hectare of land will be transformed into a near-natural retreat for people and other living beings. As a co-founder, I organized a participatory planning workshop to visualize out ideas and develop a common plan for the project. Through the use of creative and playful methods, we were able to create a shared vision for the future.
The french anthropologist Marc Augé talks in his essay „non-lieux“ about non-spaces - spaces which lack anthropological signs - spaces full of individuals but no community - airports, shopping centers and highways. This project aims to propose a development plan for these „non-lieux“.In a city where space to live is rare but non-spaces exist in abundance, a modular shared flat with an artist-studio that can grow and possess the world around it, might be able to produce those lost signs of human interaction.