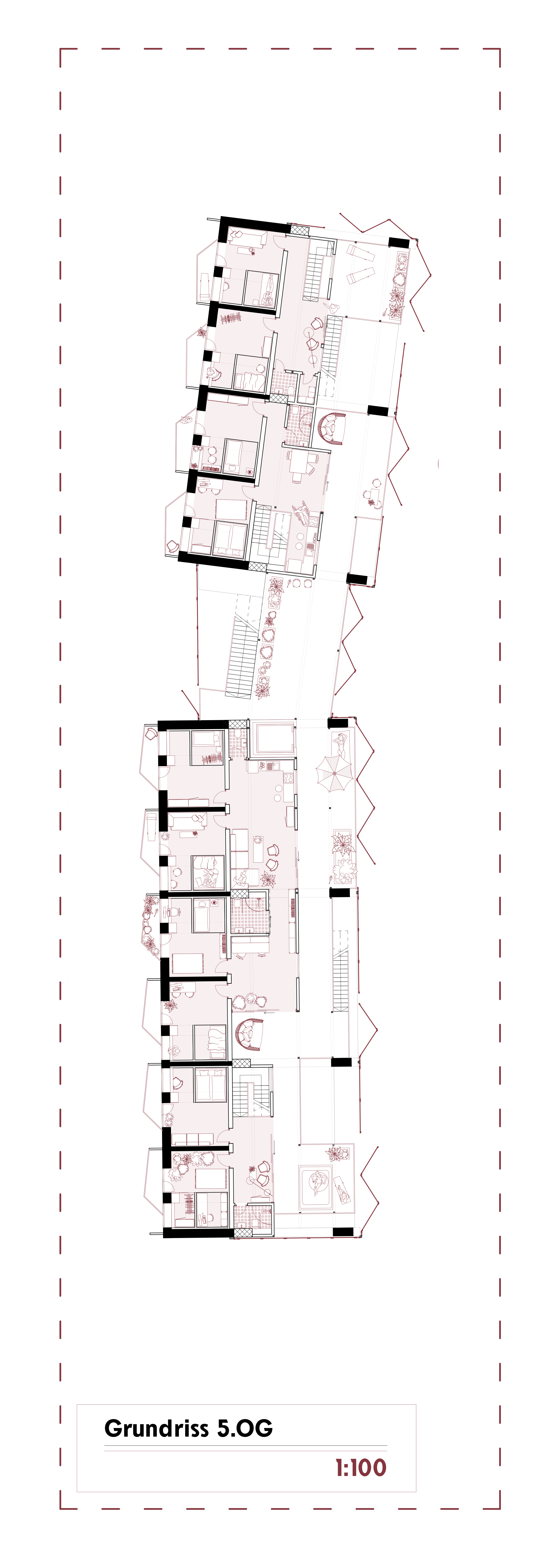
This elongated plot is one of the few forgotten places in the hyper-developed city of Berlin. Due to a potential future highway, no one has considered building anything here. While real estate developers and the city government have overlooked this part of the city, other actors have made their way here. Clubs, trailer parks, squats, and small businesses have populated the area. This project seeks to synthesize the often contradictory topics of housing development and self-governed „Freiräume“: A two-sided housing block specifically designed for co-living and co-working with the explicit intention of avoiding any active or passive displacement.
previous project website by bent fromke next project