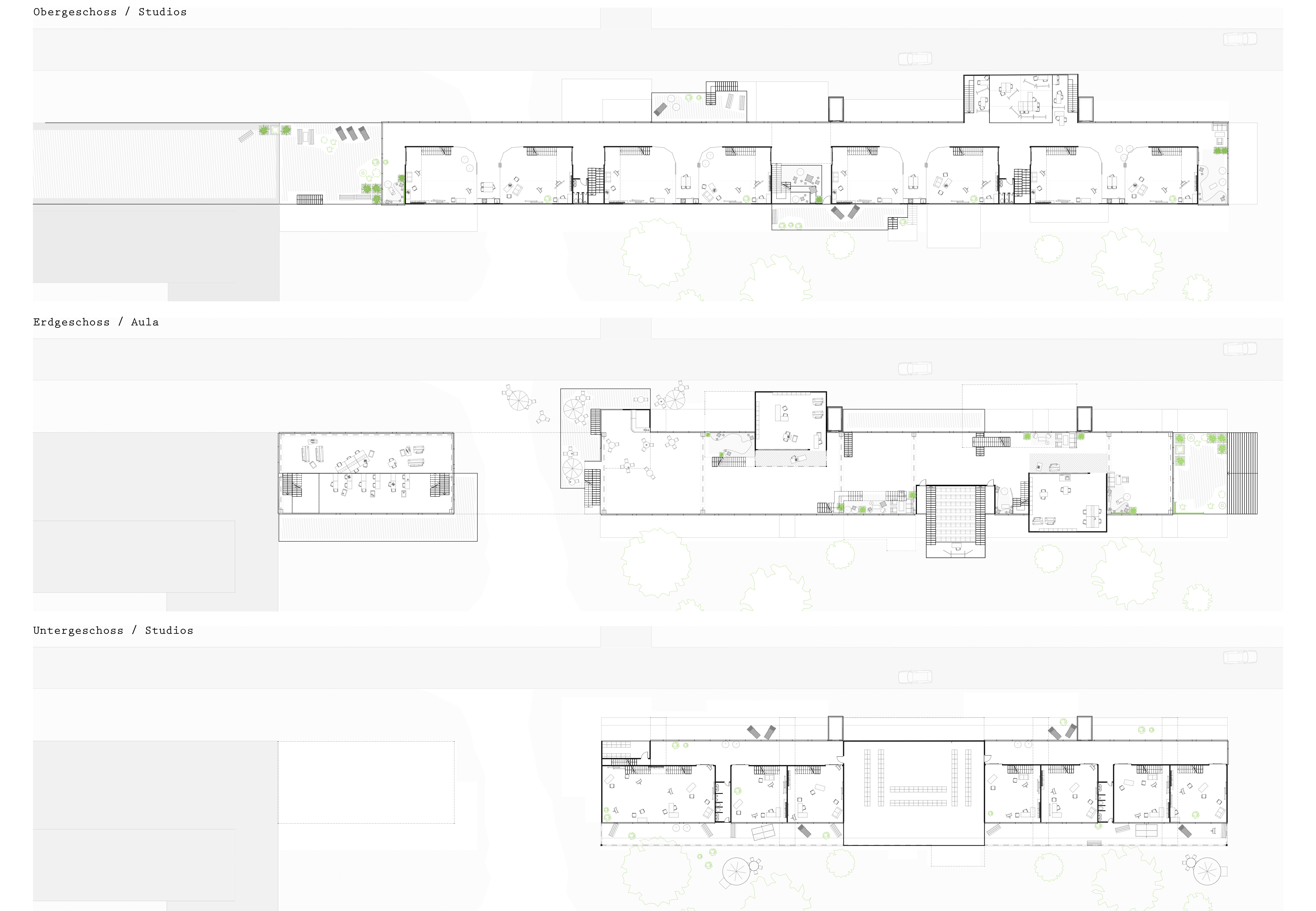
This project proposed an extension for the Kunsthochschule Weißensee - an art collage in Berlin. This new wing includes generous studio space in the top floor and the Souterrain. The ground floor offers various other university-related rooms and a stretched foyer. collection of illustration showing the different folleys collection of illustration showing the different folleys

floorplans spatial arrangement

collection of illustration showing the different folleys

floorplans

collection of illustration showing the different folleys

sections longitudinal

Trying to promote a contemporary learning environment, the building focuses on the liminal spaces and the formal-informal gradient. Furthermore a library, café and a FabLab offer a direct connection to the surrounding neighborhood.
previous project website by bent fromke next project